Продается Жилой дом с пропиской по адресу: Московская область, Павлово-Посадскмй городской округ, деревня Фатеево, дом 104. Носовихинское шоссе, 50 км от МКАД. Электрички с Курского вокзала.
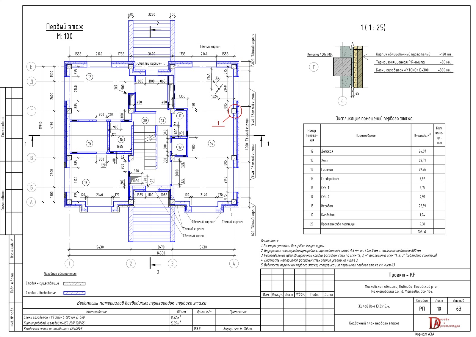
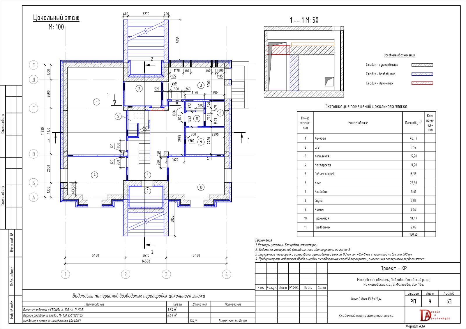
Дом общей площадью 500 кв.м., построен по согласованному проекту с Разрешением на строительство.
При строительстве дома соблюдены все технические регламенты с использованием качественных строительных материалов.
Незавершенный объект, требует достройки состоит из цокольного этажа, два жилых и мансарда.
Коммуникации: магистральный газ, электричество мощностью 15 кв.т. - подключено, вода подается из скважины (45 м), канализация - автономный септик.
Земельный участок общей площадью - 2400 кв.м.. (24 сотки), категории - земли населенных пунктов, разрешенное использование - ЛПХ (личное подсобное хозяйство на приусадебных участках).
Удобное расположение объекта относительно городской инфраструктуры. Жилая деревня Фатеево (соседи практически уже все построились) , находится всего в 3-х км от города Павловский Посад.
Документы на землю и дом в полном порядке, быстрый выход на сделку.
Цена объекта: 25 000 000 рублей. Потенциальному Покупателю - хороший торг!
