Продается Жилой дом, расположенный по адресу: Московская область, Павлово-Посадский городской округ, деревня Назарьево, микрорайон Петровский Луг.
Дом общей площадью 120 кв.м., построен из бруса (100 х150) на бетонном фундаменте.
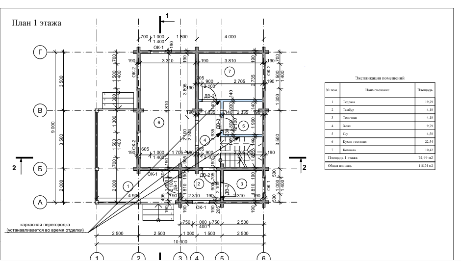
Первый этаж: терраса, прихожая, техпомещение, санузел, холл и жилая комната.
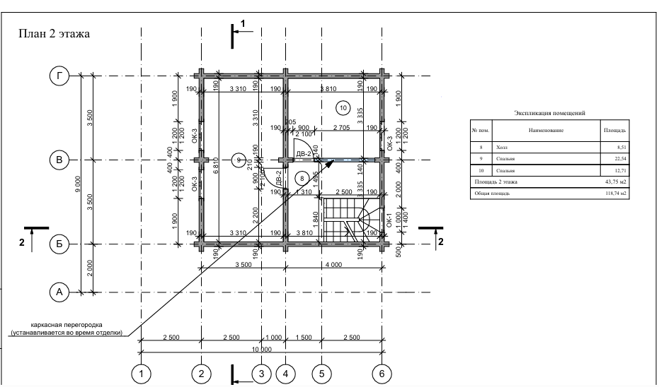
Второй этаж состоит из холла и трех спален.
Земельный участок ИЖС - 800 кв.м. межевание проведено, границы стоят на кадастре.
Жилой дом стоит на кадастровом учете, право собственности зарегистрировано.
Коммуникации: электричество 15 кв.т., Газ - магистральный по границе участка.
Удобный асфальтированный подъезд по Носовихинскому шоссе, 60 км от МКАД.
Электрички с Курского вокзала г. Москва, до станции Назарьево (пешком 15 мин).
Президент Российской Федерации Путин В.В., поручил Правительству страны продлить программу «Семейной ипотеки» на приобретение жилья для семей с детьми по льготной процентной ставке 6% до 2030 года.
Программой «Семейная ипотека» можно воспользоваться для покупки готового жилья - квартиры в новостройке или для приобретения частного жилого дома с земельным участком - ИЖС, ЛПХ, СНТ. Продавцом обязательно должно выступать юридическое лицо (например - аккредитованный застройщик кредитной организацией - банком).
"Семейную ипотеку" можно использовать на строительство частного жилого дома. При этом строительство индивидуального дома или его приобретение доступно по всей территории России, но только в рамках 214-ФЗ или договора подряда и обязательно с открытием эскроу-счета.
